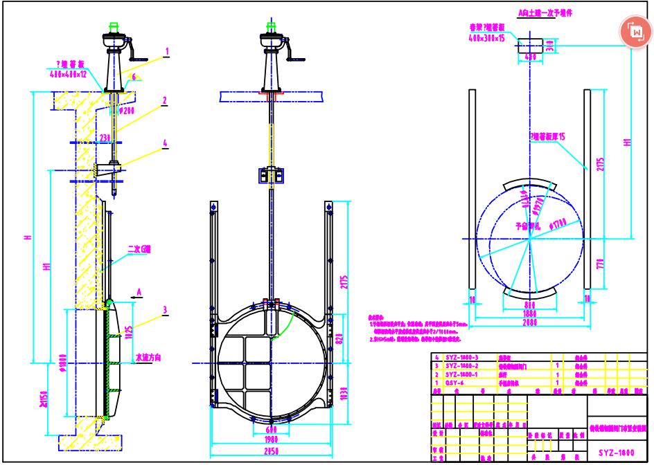
SYZ1800鑄鐵圓閘門安裝圖紙下載
SYZ1800鑄鐵圓閘門安裝圖紙下載

服務熱線13852217951
SYZ1800鑄鐵方閘門安裝圖紙下載 ,我們提供DWG圖紙下載查閱,CAD軟件可查閱。
圖紙下載:
SYZ-1600鑄鐵鑲銅圓閘門.rar

SYZ1800鑄鐵圓閘門毛坯加工過程
1、金加工車間再次對鑄件表面進行進一步清砂打磨處理,使其外觀比較專業最好文檔,專業為你服務,急你所急,供你所需清潔有利于最后的表面油漆處理。
2、密封銅條與閘框、門體裝配時用環氧樹脂密封膠同時用沉頭螺栓固定于閘框或門體上,沉頭孔內也用環氧樹脂填實,使其密封無滲漏。
3、各加工工序按技術部圖紙進行機械加工,特別注意鑄鐵鑲銅閘門的止水面加工時要嚴格按要求加工。
本文來自于:www.tjliangya.com