SFZ1200鑄鐵方閘門安裝圖紙下載
SFZ1200鑄鐵方閘門安裝圖紙下載 ,我們提供DWG圖紙下載查閱,CAD軟件可查閱。

服務熱線13852217951
SFZ1200鑄鐵方閘門安裝圖紙下載 ,我們提供DWG圖紙下載查閱,CAD軟件可查閱。
圖紙點擊下載:
SFZ-1200x1200鑄鐵鑲銅方閘門.rar

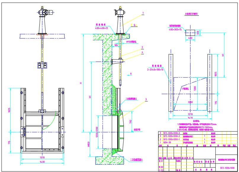
SFZ1200鑄鐵方閘門安裝要點說明:
1、 SYZ、SFZ型將閘門的門框埋入部分插進預留孔洞,用斜塊墊平、校正、使閘門導軌與鉛垂線重合,其偏差應小于1/500,然后將門蓋插入門框,進行二次澆灌,待混凝土養護后,用地腳螺栓將閘門框緊固,若門框為法蘭聯接則調正后緊固聯接螺栓,注意在門框法蘭面與土建墻壁之間應加墊密封墊。
2、 AYZ型暗桿閘門的安裝,在門框法蘭與預埋管道法蘭間墊入密封墊,調整閘門角度位置,使閘門中心線保持鉛垂后,緊固聯接螺栓。
3、 安裝軸導架以及啟閉裝置,將絲桿穿入啟閉機,注意使啟閉機中心、絲桿軸心、閘門對稱中心必須在一條鉛垂線上。
4、 調整絲桿中心后,將啟閉機底板與預埋鋼板焊固,然后逐一固定各軸導架。
5、 檢查閘門密封情況,如有滲漏現象,可將門框兩側的壓緊楔塊作適當調整, 直至達到理想的密封效果為止。
6、 在閘門的安裝過程中,應對青銅密封面做好保護,不得損壞。
本文來自于:www.tjliangya.com